Zum Angebot steht diese große Doppelhaushälfte, im Grünen in Waldkraiburg im Landkreis Mühldorf am Inn.
Diese wurde in 1974 erbaut und liebevoll vom Eigentümer modernisiert und gepflegt.
Das Haus befindet sich in einer ruhigen Sackgasse als letztes Haus in der Straße und verfügt über seine eigen Hofeinfahrt. So ist eine traumhafte Lage in einer absolut ruhigen Gegend gegeben. Der eigene Zugang zum nahegelegenem Waldstück macht das Grundstück perfekt für Familien und Naturliebhaber.
Sie betreten das Haus über einen großzügigen Windfang. Im Erdgeschoss zu Ihrer rechten befindet sich das Wannenbad mit Fenster. Zu Ihrer linken ein Gästezimmer mit eigenem Zugang zur Terrasse, dieses ist aktuell mit dem Wohnzimmer verbunden und dient als Spielzimmer für die Kinder. Das sehr großzügige Wohnzimmer welches auch zur schön gestaltenden Terrasse führt ist modern gestalten. Der Kochbereich zur rechten ist etwas getrennt vom Essbereich, dieser ist offen gestalten und hat viel Platz für Familienfeste oder zum gemeinsamen Frühstück. Die vorhandene Einbauküche ist im Preis inkludiert.
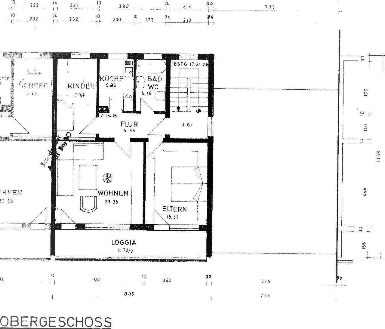
Über die separate Treppe gelangen Sie ins Obergeschoss, wo sich drei Schlafzimmer befinden und ein weiteres Badezimmer welches ebenfalls mit Fenster ausgestattet ist. Das Elternschlafzimmer hat sogar einen großen begehbaren Kleiderschrank der viel Platz bietet. Auch befinden sich hier zwei Zugänge zum großzügigen Balkon, von diesem aus hat man einen herrlichen Blick in das Waldstück vor seiner Haustüre.
Im Obergeschoss lässt sich ohne weiteres eine eigen Wohneinheit einrichten, da alle Anschlüsse für eine Küche schon vorhanden sind.
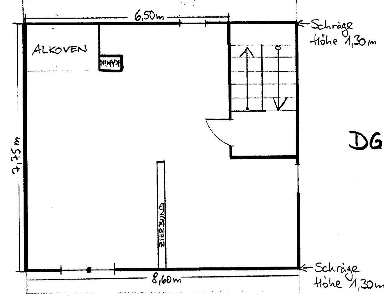
Weiter geht es ins Dachgeschoss wo uns eine traumhafte Galerie erwartet. Diese ist voll ausgestattet und verfügt über ca. 65m². Durch den offenen Grundriss lassen sich hier Ihre träume verwirklichen.
Das voll unterkellerten UG bietet sehr viel Platz. Neben einer großzügigen Waschküche und einer Speise befindet sich hier zusätzlich noch ein Zimmer, welches für eine Sauna-Oase vorbereitet ist, mit Starkstromanschluss sowie einer zusätzlichen Dusche, hier kann sich der neue Eigentümer ohne weiteres die Sauna nach seinen Wunschvorstellungen gestalten.
Neben den zahlreichen Stellplätzen vor dem Haus, gehören zum Angebot noch zwei eigene absperrbare Einzelgarage welche nebst angesprochener Küche im Preis inkludiert ist.
Der liebevoll angelegte Garten ermöglicht den neuen Eigentümern einen Aufenthalt mit Freunden im Sommer. Ein Gartenhäuschen rundet den Garten ab und ist ebenfalls im Preis inkludiert.
Im Allgemeinem befindet sich das Gebäude in einem sehr guten Zustand.
Folgende Renovierungen wurden bereits durchgeführt:
2014: begehbarer Kleiderschrank im Elternschlafzimmer
2014: diverse Modernisierungen am ganzen Haus
2017: Verlegung diverser neuer Fußböden
2018: Austausch alle Fenster durch moderne Kunststofffenster
2018: Austausch aller Heizkörper gegen neue moderne Energieeffiziente***Die Lage:
Die wichtigsten Bereiche sind fußläufig in kurzen Entfernungen erreichbar:
ca. 8 Min. Fußläufig zur Grundschule
ca. 4 Min. Fußläufig zum Kindergarten
ca. 3Min. bis zum Bahnhof
ca. 5 Min. bis zum Stadtplatz mit vielen Geschäften und Gastronomie
ca. 5 Min. zu einem großen Einzelhandelsgeschäft
—
Im November 2019 wird die A 94 von Burghausen bis München durchgängig befahrbar sein, die Autobahn ist in ca. 5 Min. Fahrzeit erreichbar.
Geografische Lage:
Waldkraiburg ist die größte Stadt im oberbayerischen Landkreis Mühldorf am Inn. Mit etwa 23.000 Einwohnern ist Waldkraiburg nach Rosenheim die zweitgrößte Stadt in der Planungsregion Südostoberbayern und eine von 13 sogenannten leistungsfähigen kreisangehörigen Gemeinden in Bayern. Waldkraiburg gehört zur Tourismusregion Inn-Salzach.
Waldkraiburg liegt im bayerischen Alpenvorland, etwa zehn Kilometer südwestlich der Kreisstadt Mühldorf auf den Achsen München–Salzburg und Landshut–Rosenheim.
An die Stadt Waldkraiburg grenzen im Norden das gemeindefreie Gebiet des Mühldorfer Harts und die Gemeinde Ampfing, im Nordosten die Kreisstadt Mühldorf, im Osten die Gemeinde Polling und im Süden der Markt Kraiburg am Inn. Im Südwesten Waldkraiburgs liegt die Gemeinde Jettenbach, im Westen die Gemeinde Aschau am Inn. Im Nordwesten teilt sich Waldkraiburg auch mit Heldenstein ein kurzes Stück Gemeindegrenze.Die Ausstattung:
– helle, moderne Ausstattung
– Wannenbad mit Dusche und Fenster
– großer Windfang im Eingangsbereich
– Einbauküche
– Garagenstellplätze
– Außenstellplätze
– gepflegte Wohnanlage in sehr ruhiger Lage
– eigener Zugang zum Wald
– Geräteschuppen im Garten (2mx2m)—–
Weitere Objekte finden Sie auf www.brehm-immobilien.de
—
Gerne sind wir Ihnen auch bei Fragen zur Finanzierung unter service@brehm-immobilien.de behilflich.
—
Besuchen Sie unsere Referenzen und empfehlen Sie uns weiter…
—
Selbstverständlich eröffnen sich mit dem Erwerb einer Immobilie auch Fragen, die in keinem Exposé beantwortet werden können. Wir stehen Ihnen deshalb gerne und kompetent für nähere Informationen sowie für die Vermittlung eines Besichtigungstermins zur Verfügung. Konnten wir mit diesem Angebot Ihr Interesse wecken? Unser Team ist gerne für Sie da. Rufen Sie uns einfach an oder schreiben uns eine Email. Wir freuen uns auf Ihre Nachricht – Ihr BREHM-Immobilien-Team!
—
Bitte haben Sie Verständnis, dass wir E-Mail-Anfragen nur mit vollständiger Adresse und Telefonnummer weiter bearbeiten können.
—
Alle Angaben zur Objektbeschreibung und zum Exposé im Internet und auf Werbeträgern, stammen vom Eigentümer bzw. Vermieter und wurden von BREHM-Immobilien ungeprüft übernommen. Für Richtigkeit und Vollständigkeit der Angaben wird daher keine Haftung übernommen. Dieses Exposé ist eine Vorinformation. Als Rechtsgrundlage gilt ausschließlich der notariell abgeschlossene Kaufvertrag bzw. Mietvertrag.
Bitte haben Sie Verständnis, dass wir Ihnen die genaue Adresse der Immobilie aus Datenschutzgründen erst auf direkte Anfrage beim jeweiligen Ansprechpartner mitteilen können.
Die angezeigte Position auf der Kartenansicht entspricht nur einem Richtwert. Die tatsächliche Position der Immobilie kann gegebenenfalls abweichen.


