Intelligent geplante Neubau-Niedrigenergiewohnung (KW 55) in Triftern O.T. Anzenkirchen, nähe dem Bäderdreieck!
Großzügige 3-Zimmer-Etagenwohnung in ruhiger Lage.
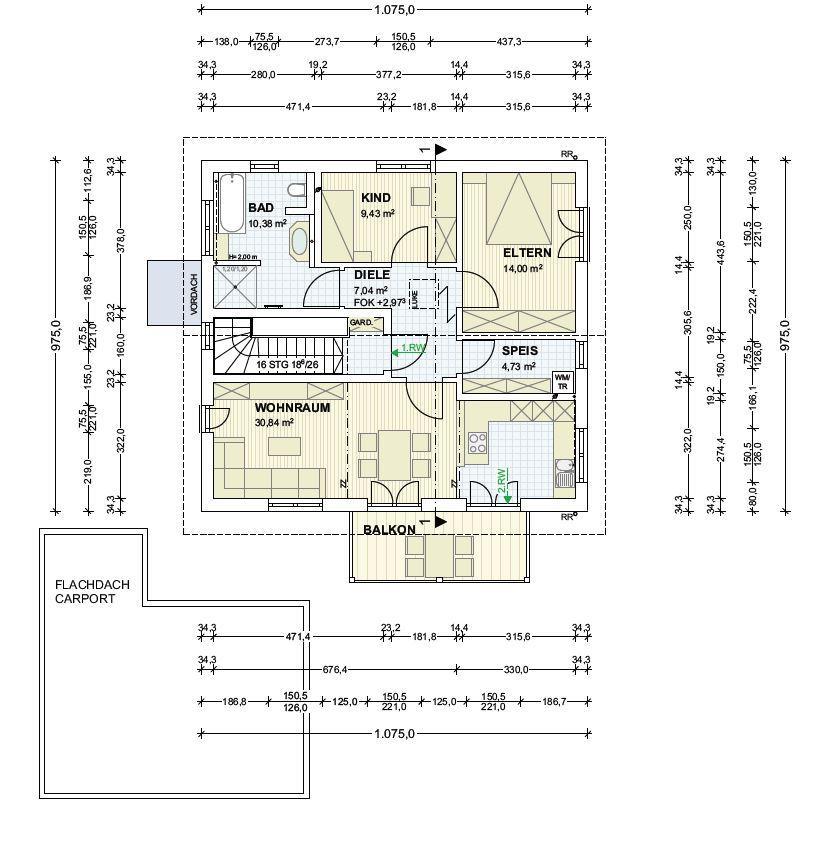
Bei dieser ansprechenden Immobilie handelt es sich um einen Erstbezug in einer Etagenwohnung im ersten Obergeschoss, die durch eine gehobene Innenausstattung besticht und zum 15.05.2018 bezogen werden kann.
Die 3-Zimmer-Wohnung verfügt nebst zwei Schlafzimmer ein Wasch-/Geräteraum sowie ein mit Fenster ausgestattes Badezimmer inkl. Badewanne und bodenebener Dusche.
Durch die südlich ausgelegte Balkonseite genießen Sie die Sonne und den Blick ins Grüne den ganzen Tag!
Den Mietern steht ein Carport sowie optional ein weiterer Autostellplatz zur Verfügung.
Bezugsmöglichkeit/Fertigstellung nach Absprache, jedoch frühestens ab Mitte Mai. Hinweis: Die Carports werden voraussichtlich zum Herbst 2018 fertig gestellt werden.
Mietaufstellung:
Kaltmiete: 550,-
Carportmiete: 30,-
((optional) Stellplatz: 15,-))
Nebenkosten: 120,-
Warmmiete: 715,-
Kaution: 3 Kaltmonatsmieten = 1740,- Euro
Eine Einbauküche ist nicht im Vermietungsumfang enthalten.
Bitte beachten Sie, dass eine Anmietung erst ab 01.06.2018 garantiert werden kann.Die Lage:
Microlage:
Einkaufsmöglichkeit (Edeka), ein Kindergarten sowie der Bahnhof (Passau – Mühldorf – München) sind in nur 10 Gehminuten zu erreichen.
Macrolage:
Triftern liegt im Isar-Inn-Hügelland am Altbach in einem kleinen Seitental der Rott etwa sieben Kilometer südöstlich der Kreisstadt Pfarrkirchen, zwölf Kilometer südwestlich von Bad Birnbach, 28 km westlich von Pocking, 17 km nördlich von Simbach bzw. 18 km von Braunau sowie 20 km östlich von Eggenfelden. Die nächstgelegene Bahnstation an der Regionalbahnstrecke Passau – Mühldorf befindet sich im fünf Kilometer entfernten Anzenkirchen.Die Ausstattung:
– Fußbodenheizung
– Badewanne sowie bodenebene Dusche
– elektrische bedienbare Jalousine
– südlich ausgelegter Balkon
Hochwertig ausgestattete Neubauwohnung mit Laminat/Fliesenboden, Fußbodenheizung, Sprechanlage, Carport uvm. Die Wohnung erfüllt den KfW55 Standard, und ist daher sehr günstig im Unterhalt.Selbstverständlich eröffnen sich mit dem Erwerb einer Immobilie auch Fragen, die in keinem Exposé beantwortet werden können. Wir stehen Ihnen deshalb gerne und kompetent für nähere Informationen sowie für die Vermittlung eines Besichtigungstermins zur Verfügung. Konnten wir mit diesem Angebot Ihr Interesse wecken? Unser Team ist gerne für Sie da. Rufen Sie uns einfach an oder schreiben uns eine Email. Wir freuen uns auf Ihre Nachricht – Ihr BREHM-Immobilien-Team!
—
Bitte haben Sie Verständnis, dass wir E-Mail-Anfragen nur mit vollständiger Adresse und Telefonnummer weiter bearbeiten können.
—
Weitere Objekte finden Sie auf www.brehm-immobilien.de
—
Gerne sind wir Ihnen auch bei Fragen zur Finanzierung unter service@brehm-immobilien.de behilflich.
—
Alle Angaben zur Objektbeschreibung und zum Exposé im Internet und auf Werbeträgern, stammen vom Eigentümer bzw. Vermieter und wurden von BREHM-Immobilien ungeprüft übernommen. Für Richtigkeit und Vollständigkeit der Angaben wird daher keine Haftung übernommen. Dieses Exposé ist eine Vorinformation. Als Rechtsgrundlage gilt ausschließlich der notariell abgeschlossene Kaufvertrag bzw. Mietvertrag.
Bitte haben Sie Verständnis, dass wir Ihnen die genaue Adresse der Immobilie aus Datenschutzgründen erst auf direkte Anfrage beim jeweiligen Ansprechpartner mitteilen können.
Die angezeigte Position auf der Kartenansicht entspricht nur einem Richtwert. Die tatsächliche Position der Immobilie kann gegebenenfalls abweichen.


