+++Reserviert+++
Reserviert heist nicht verkauft. Wenn Ihnen das Objekt gefallen hat, freuen wir uns über Ihre Kontaktaufnahme. Gegeben falls können wir Ihnen alternativen anbieten. Wir freuen uns mit Ihnen in Kontakt zu treten. Vielen Dank für Ihr Verständnis.
—
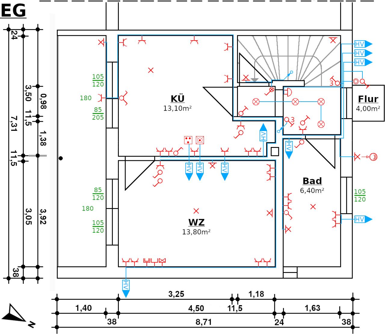
Renovierungsbedürftiges Reihenmittelhaus mit zwei Doppelgaragen und eigenem Gartenanteil.
Verkauft wird dieses im Jahre 1949 erstellte Reihenendhaus, 1969 wurde mit einem weiteren Geschoss aufgestockt.
Gewisse Arbeiten wurden bereits in den letzten Monaten vom Eigentümer repariert/erneuert, wie zb. Dachbalken, Fenster (Schüko), Elektrik, Statik/Mauerwerk, Kanalarbeiten, Wasserab- und Zuleitungen. Es ist zudem einiges Arbeitsmaterial im Kaufpreis enthalten.
Das Obergeschoss wurde komplett entkernt.
Das Objekt ist voll unterkellert und verfügt über einen separaten Zugang.
Ruhig gelegen, für die kleine Familie, eine Möglichkeit ein günstiges Haus im Landkreis Mühldorf am Inn zu erwerben.
Der Verkauf erfolgt provisionsfrei für die Käufer..
.
Die Lage:
– Schillerstraße 7, Töging am Inn.
.
..
.
Die Ausstattung:
– Öl-Zentralheizung
– Edelstahl Wasserleitungen (Renovierung 90er Jahre)
– Neuwertige Elektroleitung im Erdgeschoss (Verteilerkasten)
– Garten
– Doppelgaragen
.
..
.
Selbstverständlich eröffnen sich mit dem Erwerb einer Immobilie auch Fragen, die in keinem Exposé beantwortet werden können. Wir stehen Ihnen deshalb gerne und kompetent für nähere Informationen sowie für die Vermittlung eines Besichtigungstermins zur Verfügung. Konnten wir mit diesem Angebot Ihr Interesse wecken? Unser Team ist gerne für Sie da. Rufen Sie uns einfach an oder schreiben uns eine Email. Wir freuen uns auf Ihre Nachricht – Ihr BREHM-Immobilien-Team!
—
Bitte haben Sie Verständnis, dass wir E-Mail-Anfragen nur mit vollständiger Adresse und Telefonnummer weiter bearbeiten können.
—
Weitere Objekte finden Sie auf www.brehm-immobilien.de
—
Gerne sind wir Ihnen auch bei Fragen zur Finanzierung unter service@brehm-immobilien.de behilflich.
—
Alle Angaben zur Objektbeschreibung und zum Exposé im Internet und auf Werbeträgern, stammen vom Eigentümer bzw. Vermieter und wurden von BREHM-Immobilien ungeprüft übernommen. Für Richtigkeit und Vollständigkeit der Angaben wird daher keine Haftung übernommen. Dieses Exposé ist eine Vorinformation. Als Rechtsgrundlage gilt ausschließlich der notariell abgeschlossene Kaufvertrag bzw. Mietvertrag.
Bitte haben Sie Verständnis, dass wir Ihnen die genaue Adresse der Immobilie aus Datenschutzgründen erst auf direkte Anfrage beim jeweiligen Ansprechpartner mitteilen können.
Die angezeigte Position auf der Kartenansicht entspricht nur einem Richtwert. Die tatsächliche Position der Immobilie kann gegebenenfalls abweichen.


