+++VERKAUFT+++
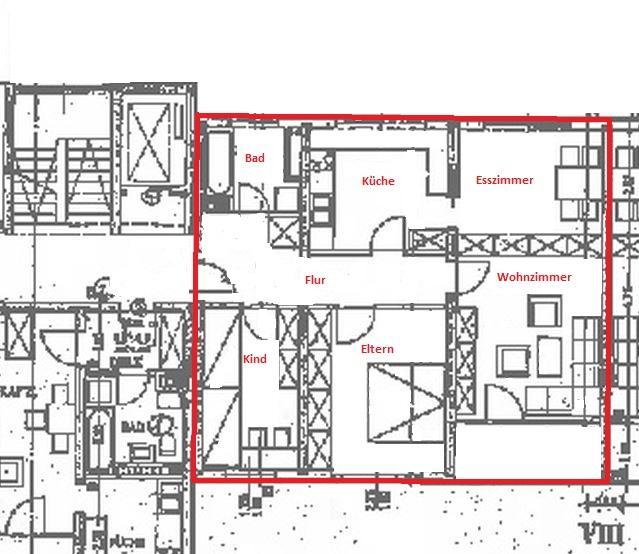
Angeboten wird eine seit 01.09.2016 vermietete 3-Zimmer-Wohnung im 6.Obergeschoss. (Aufzug vorhanden)
Geplfegte 3-Zimmer-Wohnung in ruhiger Wohnanlage, mit Wertsteigerungspotential nach Fertigstellung der Autobahn A94.
Aktuell ist die Einheit an ruhige und zuverlässige Mieter für Euro 434,- kalt (letzte Mieterhöhung 31.12.2018).
Im Verkaufsumfang sind ein Kellerabteil sowie eine Einzelgarage enthalten.
Besichtigungen sind nur nach vorherige Absprache mit den Mieter möglich.
Eckdaten:
Kaltmiete Wohnung: 434,- Euro
Miete Garage: 29,- Euro
Nebenkostenvorauszahlung (umlegbare kosten auf den Mieter): 140,- Euro
Hausgeld (Kosten für Eigentümer): 207,- Euro
Warmmiete: 603,- Euro
Garagenkaufpreis: 15000,-
Der Eigenbedarfsanspruch kann aufgrund von gesetzlichen Bestimmungen erste im April 2021 angemeldet werden..
Die Lage:
*Microlage:*
Fußläufig sind Geschäfte des täglichen Bedrafs vorhanden. Kindergarten, Grundschule sowie weiterführenden Schulen sind wie Ärzte, Bäcker etc. fußläufig erreichbar.
*Macrolage:*
Die Stadt Waldkraiburg liegt im Landkreis Mühldorf am Inn, südöstlich von München.
Die Autobahnauffahrt – A 94 (ab 2019) mit guter Anbindung nach München – Mühldorf – Landshut.
Der Chiemsee, Simsee, Tachinger und Waginger See, die Chiemgauer Berge erreichen Sie in rund 45 Autominuten..
Die Ausstattung:
– Kellerabteil
– Helle großzügige RäumeSelbstverständlich eröffnen sich mit dem Erwerb einer Immobilie auch Fragen, die in keinem Exposé beantwortet werden können. Wir stehen Ihnen deshalb gerne und kompetent für nähere Informationen sowie für die Vermittlung eines Besichtigungstermins zur Verfügung. Konnten wir mit diesem Angebot Ihr Interesse wecken? Unser Team ist gerne für Sie da. Rufen Sie uns einfach an oder schreiben uns eine Email. Wir freuen uns auf Ihre Nachricht – Ihr BREHM-Immobilien-Team!
—
Bitte haben Sie Verständnis, dass wir E-Mail-Anfragen nur mit vollständiger Adresse und Telefonnummer weiter bearbeiten können.
—
Weitere Objekte finden Sie auf www.brehm-immobilien.de
—
Gerne sind wir Ihnen auch bei Fragen zur Finanzierung unter service@brehm-immobilien.de behilflich.
—
Alle Angaben zur Objektbeschreibung und zum Exposé im Internet und auf Werbeträgern, stammen vom Eigentümer bzw. Vermieter und wurden von BREHM-Immobilien ungeprüft übernommen. Für Richtigkeit und Vollständigkeit der Angaben wird daher keine Haftung übernommen. Dieses Exposé ist eine Vorinformation. Als Rechtsgrundlage gilt ausschließlich der notariell abgeschlossene Kaufvertrag bzw. Mietvertrag.
Bitte haben Sie Verständnis, dass wir Ihnen die genaue Adresse der Immobilie aus Datenschutzgründen erst auf direkte Anfrage beim jeweiligen Ansprechpartner mitteilen können.
Die angezeigte Position auf der Kartenansicht entspricht nur einem Richtwert. Die tatsächliche Position der Immobilie kann gegebenenfalls abweichen.


