Angeboten wird ein schönes Zweifamilienhaus im ruhig gelegen Ort Knüllwald, Ortsteil: Niederbeisheim.
Das Haupthaus welches als Zweifamilienhaus in Ständerbauweise im Jahr 1970/1971 erbaut worden ist, verfügt über fünf Schlafzimmer, ein Dusch/WC im Erdgeschoss, ein Wohnzimmer mit Kamin und einer schönen Treppengalarie sowie ein Badezimmer im Obergeschoss.
Das Objekt ist voll unterkellert, hier befindet sich ein 45 m2 großer Hobbyraum, ein Abstellraum, die Waschküche und der Heizungsraum.
Betritt man das Haus gelangen Sie in eine Diele, dort befindet sich zur rechten das Dusch-WC mit Fenster und zur linken gelangen Sie in den Keller. Grade aus geht man auf eine Tür zu, von dieser kommen Sie in einen weiteren Flur. Links abgehend befindet sich die Küche, rechts das großzügige Wohnzimmer mit Kamin und einer Treppengalerie. Von der Küche aus richtung Wohnzimmer liegt links ein weiteres Zimmer, was man als Esszimmer, Schlafzimmer oder Büro nutzt.
Über das Wohnzimmer betritt man die Galerie im Obergeschoss, von dort aus gelangt man zur rechten auf den Balkon. Links herum gelangen Sie in einen Flur wo sich das neu modernisierte Bad befindet. So wie vier weitere Schlafräume, allesamt sind hell und können als Kinder- bzw. Schlafzimmer genutzt werden.
Das Nebengebäude ist für eine Kaltmiete von 400,- vermietet. Der Mieter wünscht die Immobilie weiter bewohnen zu dürfen. (Rendite: 2,9 %)
Bezug vom Hauptgebäude, kann erst ab 01.07.2017 zugesichert werden.
Für weitere Fragen freuen wir uns über Ihre Kontaktaufahme.Knüllwald:
Die Gemeinde Knüllwald, malerisch gelegen an den beiden Flüssen Efze und Beise, ist mit 10.053 ha eine der größten Flächengemeinden in Hessen; im Schwalm-Eder-Kreis belegt sie diesen Spitzenplatz noch vor der Kreisstadt Homberg (Efze).
In Knüllwald findet man hier Einrichtungen für Kultur, Freizeit und Erholung, Bürger- und Dorfgemeinschaftshäuser, Büchereien, Parkanlagen, Museen, markierte Wander- und Radwege, einen Waldlehrpfad, Campingplätze, drei Freibäder, mehrere Sportplätze, Kinderspielplätze, Tennisplätze und Minigolf. Es gibt Möglichkeiten zum Angeln, Reiten, Planwagen- und Kutschfahrten sowie Fahrten mit dem Freizeitexpress. Sehenswert ist der “Wildpark Knüll”, die “Burgruine Wallenstein” sowie die einzige nordhessische Klamm, die “Lochbachklamm”.
Verkehrstechnisch ist Knüllwald sehr gut über die Bundesautobahn A7 (nur 2 Kilometer), mit dem Anschluss Homberg (Efze) und die Bundesstraße 323 an das Fernwegenetz angeschlossen. Aufgrund der zentralen Lage mitten in Deutschland entwickeln sich an diesem Auotbahnanschluss zwei Gewerbegebiete mit einer Gesamtfläche von 410000m².
Schulen und Kindergärten (Kitas) sind in Knüllwald ansässig, die Einkaufsmöglichkeiten für den kurz- bis langfristigen Bedarf sind in Knüllwald vorhanden.* Neue Bäder
* Ölbrenner 2011 erneuert
* zwei offene Kamine
Die Wohneinheiten sind seit 2 Jahren voll vermietet.
Mieteinnahmen Haupthaus: 500,- Euro
Mieteinnahmen Nebengeb.: 490,- Euro
Somit liegt die Rendite, ausgehend vom VKP, bei 7,2%Der Anbau des Zweifamilienhaus ist im Jahr 1983 mit Ytong erbaut worden und verfügt über 2 Schlafzimmer, ein Bad im Ergeschoss, ein Wohnzimmer mit Kamin. Betritt man das Haus steht man direkt in einem L förmigen Flur wovon alle Räume abgehen. Zuerst kommt zur linken eine Treppe, die in das Dachgeschoss führt, über einen kleinen Flur gelangen Sie in das Kinder-Schlafzimmer bzw. Büro, desweiteren befindet sich im Obergeschoss ein großer Abstellraum. Hinter dem Treppenaufgang im Erdgeschoß / Flur befindet sich ein kleiner Abstellraum, hier ist der Verteiler für die Fußbodenheizung. Grade aus gelangen Sie in das hell geflieste Badezimmer. Neben dem Badezimmer befindet sich die geräumie Küche, dann folgt das Schlafzimmer. Gegen über der Küche ist das Wohnzimmer mit einer großen Fensterfront und einem Kamin.
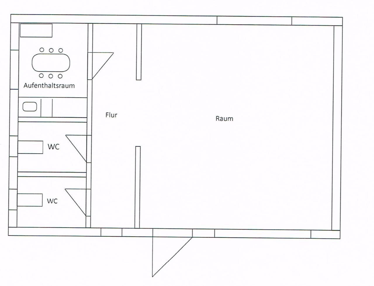
Das Nebengebäude ist im Jahr 1991 erbaut worden und verfügt über einen Licht durchfluteten Raum, zwei WC´s und einem Aufenthaltsraum mit Küchenzeile. Betritt man das Nebengebäude stehen Sie direkt in einem hellen Raum, der früher als Friseurladen genutzt wurde. Linksseitig gelangen Sie durch einen Durchbruch in den Flur, von diesem aus liegt rechts der Aufenthaltsraum und links befinden sich die WC´s.
Bitte haben Sie Verständnis, dass wir E-Mail-Anfragen nur mit vollständiger Adresse und Telefonnummer weiter bearbeiten können.
—
Weitere Objekte finden Sie auf www.brehm-immobilien.de
—
Gerne sind wir Ihnen auch bei Fragen zur Finanzierung unter service@brehm-immobilien.de behilflich.
—
Alle Angaben zur Objektbeschreibung und zum Exposé im Internet und auf Werbeträgern, stammen vom Eigentümer bzw. Vermieter und wurden vom BREHM-Immobilien ungeprüft übernommen. Für Richtigkeit und Vollständigkeit der Angaben wird daher keine Haftung übernommen. Dieses Exposé ist eine Vorinformation. Als Rechtsgrundlage gilt ausschließlich der notariell abgeschlossene Kaufvertrag bzw. Mietvertrag.
Bitte haben Sie Verständnis, dass wir Ihnen die genaue Adresse der Immobilie aus Datenschutzgründen erst auf direkte Anfrage beim jeweiligen Ansprechpartner mitteilen können.
Die angezeigte Position auf der Kartenansicht entspricht nur einem Richtwert. Die tatsächliche Position der Immobilie kann gegebenenfalls abweichen.


